Rodzaj nieruchomości: biuro Rodzaj oferty: wynajem
/images/galeria/1482/zrodlowy-2.jpg
widok mapy
widok ulicy

Zapytaj o tę nieruchomość
Zadzwoń 48 22 820 20 20

lokalizacja nieruchomości

Gdynia, ul. Łużycka 8

Koszty

Czynsz 14.00 € / m2 / mc
Eksploatacja 19.00 zł / m2 / mc

Wyjściowe warunki najmu

Czynsz wyjściowy za pow. biurową 14.00 € / m2
Koszty eksploatacyjne 19.00 zł / m2
Koszt parkingu naziemnego 37.00 € / miejsce
Koszt parkingu podziemnego 41.00 € / miejsce

Dostępne powierzchnie

Całkowita dostępna pow. biurowa 291 m2
Minimalna biurowa pow. najmu 112 m2
Minimalny okres najmu 60 miesięcy
Budynkowy współczynnik pow. wspólnych 5.49 %

Informacje o budynku

Status budynku istniejący
Całkowita pow. biurowa netto 4 960 m2
Data zakończenia budowy 1 2016
Liczba pięter naziemnych 4 (łącznie z parterem)
Liczba pięter podziemnych 1
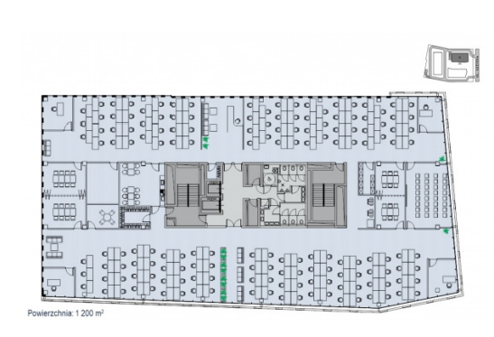
Powierzchnia typowego piętra 1 200 m2
Liczba miejsc parkingowych naziemnych 27
Liczba miejsc parkingowych podziemnych 73
Certyfikat Ekologiczny -
Wsp. miejsc parkingowych 1 miejsce na 44 m2 powierzchni

Standard wykończeń

żaluzje wewnętrzne
tryskacze
podwójne zasilanie
kontrola dostępu
okablowanie telefoniczne
okablowanie komputerowe
okablowanie elektryczne
centrala telefoniczna
klimatyzacja
czujniki dymu i ciepła
podnoszone podłogi
podwieszane sufity
wykładziny
otwierane okna
łącze światłowodowe
ścianki działowe
BMS

Dostępne powierzchnie

Skontaktuj się z nami

Plan typowego piętra

Nie masz czasu szukać? Skontaktuj się z nami

Oblicz łączne koszty wynajmu

Biorąc pod uwagę liczbę pracowników oraz aranżację stanowisk pracy

occupiermetrics.com