Rodzaj nieruchomości: biuro Rodzaj oferty: wynajem
/images/galeria/2135/zrodlowy-1.jpg
widok mapy
widok ulicy

Zapytaj o tę nieruchomość
Zadzwoń 48 22 820 20 20

lokalizacja nieruchomości

Kraków, ul. Lublańska 34 A

Koszty

Czynsz 13.80 € / m2 / mc
Eksploatacja 15.00 zł / m2 / mc

Wyjściowe warunki najmu

Czynsz wyjściowy za pow. biurową 13.80 € / m2
Koszty eksploatacyjne 15.00 zł / m2
Koszt parkingu naziemnego do uzgodnienia
Koszt parkingu podziemnego do uzgodnienia

Dostępne powierzchnie

Całkowita dostępna pow. biurowa 0 m2
Minimalna biurowa pow. najmu do uzgodnienia
Minimalny okres najmu 60 miesięcy
Budynkowy współczynnik pow. wspólnych 4.50 %

Informacje o budynku

Status budynku istniejący
Całkowita pow. biurowa netto 12 500 m2
Data zakończenia budowy 9 2018
Liczba pięter naziemnych 11 (łącznie z parterem)
Liczba pięter podziemnych 2
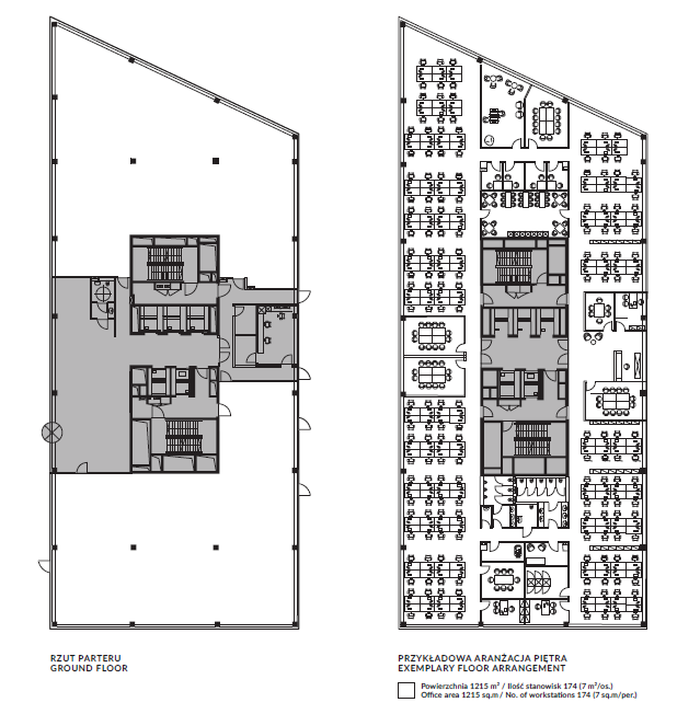
Powierzchnia typowego piętra 1 200 m2
Liczba miejsc parkingowych naziemnych 15
Liczba miejsc parkingowych podziemnych 583
Certyfikat Ekologiczny -
Wsp. miejsc parkingowych do uzgodnienia

Standard wykończeń

żaluzje wewnętrzne
tryskacze
podwójne zasilanie
kontrola dostępu
okablowanie telefoniczne
okablowanie komputerowe
okablowanie elektryczne
centrala telefoniczna
klimatyzacja
czujniki dymu i ciepła
podnoszone podłogi
podwieszane sufity
wykładziny
otwierane okna
łącze światłowodowe
ścianki działowe
BMS

Dostępne powierzchnie

Skontaktuj się z nami

Plan typowego piętra

Nie masz czasu szukać? Skontaktuj się z nami

Oblicz łączne koszty wynajmu

Biorąc pod uwagę liczbę pracowników oraz aranżację stanowisk pracy

occupiermetrics.com