Rodzaj nieruchomości: biuro Rodzaj oferty: wynajem
/images/galeria/899/biuro-real_office-1org.jpg
widok mapy
widok ulicy

Zapytaj o tę nieruchomość
Zadzwoń 48 22 820 20 20

lokalizacja nieruchomości

Łódź, ul. Traktorowa 128

Koszty

Czynsz 46.00 zł / m2 / mc
Eksploatacja 19.52 zł / m2 / mc

Wyjściowe warunki najmu

Czynsz wyjściowy za pow. biurową 46.00 zł / m2
Koszty eksploatacyjne 19.52 zł / m2
Koszt parkingu naziemnego 250.00 zł / miejsce
Koszt parkingu podziemnego do uzgodnienia

Dostępne powierzchnie

Całkowita dostępna pow. biurowa 63 m2
Minimalna biurowa pow. najmu 49 m2
Minimalny okres najmu 12 miesięcy
Budynkowy współczynnik pow. wspólnych do uzgodnienia

Informacje o budynku

Status budynku istniejący
Całkowita pow. biurowa netto 3 900 m2
Data zakończenia budowy III 2011
Liczba pięter naziemnych 9 (łącznie z parterem)
Liczba pięter podziemnych 1
Powierzchnia typowego piętra 250 - 590 m2
Liczba miejsc parkingowych naziemnych 63
Liczba miejsc parkingowych podziemnych 0
Certyfikat Ekologiczny -
Wsp. miejsc parkingowych do uzgodnienia

Standard wykończeń

żaluzje wewnętrzne
tryskacze
podwójne zasilanie
kontrola dostępu
okablowanie telefoniczne
okablowanie komputerowe
okablowanie elektryczne
centrala telefoniczna
klimatyzacja
czujniki dymu i ciepła
podnoszone podłogi
podwieszane sufity
wykładziny
otwierane okna
łącze światłowodowe
ścianki działowe
BMS

Dostępne powierzchnie

Skontaktuj się z nami

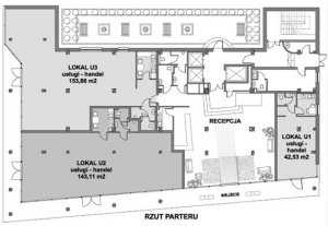
Plan typowego piętra

Nie masz czasu szukać? Skontaktuj się z nami

Oblicz łączne koszty wynajmu

Biorąc pod uwagę liczbę pracowników oraz aranżację stanowisk pracy

occupiermetrics.com