Rodzaj nieruchomości: biuro Rodzaj oferty: wynajem
/images/galeria/2370/zrodlowy-1.jpg
/images/galeria/2370/zrodlowy-9.jpg
/images/galeria/2370/zrodlowy-10.jpeg
/images/galeria/2370/zrodlowy-11.jpeg
/images/galeria/2370/zrodlowy-12.jpeg
/images/galeria/2370/zrodlowy-13.jpeg
/images/galeria/2370/zrodlowy-14.jpeg
/images/galeria/2370/zrodlowy-15.jpeg
/images/galeria/2370/zrodlowy-16.jpeg
widok mapy
widok ulicy

Zapytaj o tę nieruchomość
Zadzwoń 48 22 820 20 20

lokalizacja nieruchomości

Łódź, ul. Targowa 77

Koszty

Czynsz 55.00 zł / m2 / mc
Eksploatacja 23.00 zł / m2 / mc

Wyjściowe warunki najmu

Czynsz wyjściowy za pow. biurową 55.00 zł / m2
Koszty eksploatacyjne 23.00 zł / m2
Koszt parkingu naziemnego 275.00 zł / miejsce
Koszt parkingu podziemnego brak parkingu

Dostępne powierzchnie

Całkowita dostępna pow. biurowa 305 m2
Minimalna biurowa pow. najmu 321 m2
Minimalny okres najmu 36 miesięcy
Budynkowy współczynnik pow. wspólnych do uzgodnienia

Informacje o budynku

Status budynku istniejący
Całkowita pow. biurowa netto 1 002 m2
Data zakończenia budowy 3 2019
Liczba pięter naziemnych 2 (łącznie z parterem)
Liczba pięter podziemnych 1
Powierzchnia typowego piętra 450 m2
Liczba miejsc parkingowych naziemnych 4
Liczba miejsc parkingowych podziemnych 0
Certyfikat Ekologiczny -
Wsp. miejsc parkingowych do uzgodnienia

Standard wykończeń

żaluzje wewnętrzne
tryskacze
podwójne zasilanie
kontrola dostępu
okablowanie telefoniczne
okablowanie komputerowe
okablowanie elektryczne
centrala telefoniczna
klimatyzacja
czujniki dymu i ciepła
podnoszone podłogi
podwieszane sufity
wykładziny
otwierane okna
łącze światłowodowe
ścianki działowe
BMS

Udogodnienia

kawiarnia
bankomat
paczkomat
parking dla gości
parking dla rowerów
myjnia samochodowa
co-work
przedszkole
pralnia
supermarket
siłownia / fitness
kantyna / restauracje
centrum konferencyjne
centrum medyczne
parki / tereny zielone
hotel w okolicy

Dostępne powierzchnie

Skontaktuj się z nami

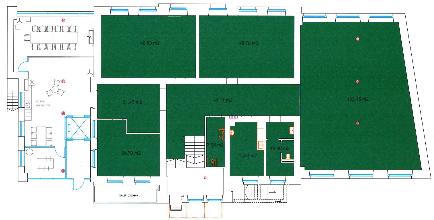
Plan typowego piętra

Nie masz czasu szukać? Skontaktuj się z nami

Oblicz łączne koszty wynajmu

Biorąc pod uwagę liczbę pracowników oraz aranżację stanowisk pracy

occupiermetrics.com