Rodzaj nieruchomości: biuro Rodzaj oferty: wynajem
/images/galeria/838/zrodlowy-1.png
widok mapy
widok ulicy

Zapytaj o tę nieruchomość
Zadzwoń 48 22 820 20 20

lokalizacja nieruchomości

Wrocław, ul. Szewska 8

Koszty

Czynsz 16.00 € / m2 / mc
Eksploatacja 16.00 zł / m2 / mc

Wyjściowe warunki najmu

Czynsz wyjściowy za pow. biurową 16.00 € / m2
Koszty eksploatacyjne 16.00 zł / m2
Koszt parkingu naziemnego 0.00 zł / miejsce
Koszt parkingu podziemnego 150.00 € / miejsce

Dostępne powierzchnie

Całkowita dostępna pow. biurowa 700 m2
Minimalna biurowa pow. najmu 200 m2
Minimalny okres najmu 36 miesięcy
Budynkowy współczynnik pow. wspólnych 5.00 %

Informacje o budynku

Status budynku istniejący
Całkowita pow. biurowa netto 4 500 m2
Data zakończenia budowy 2000
Liczba pięter naziemnych 6 (łącznie z parterem)
Liczba pięter podziemnych 1
Powierzchnia typowego piętra 900 m2
Liczba miejsc parkingowych naziemnych 0
Liczba miejsc parkingowych podziemnych 30
Certyfikat Ekologiczny -
Wsp. miejsc parkingowych 1 miejsce na 100 m2 powierzchni

Standard wykończeń

żaluzje wewnętrzne
tryskacze
podwójne zasilanie
kontrola dostępu
okablowanie telefoniczne
okablowanie komputerowe
okablowanie elektryczne
centrala telefoniczna
klimatyzacja
czujniki dymu i ciepła
podnoszone podłogi
podwieszane sufity
wykładziny
otwierane okna
łącze światłowodowe
ścianki działowe
BMS

Dostępne powierzchnie

Skontaktuj się z nami

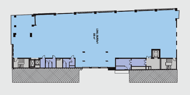
Plan typowego piętra

Nie masz czasu szukać? Skontaktuj się z nami

Oblicz łączne koszty wynajmu

Biorąc pod uwagę liczbę pracowników oraz aranżację stanowisk pracy

occupiermetrics.com