Property type: office Offer type: lease
/images/galeria/415/biuro-city_star_office_center-1org.jpg
map view
street view

Make an enquiry
Call us on 48 22 820 20 20
write an email office@remobile.pl

location

Warszawa, Aleja Krakowska 6

Costs

Rent 12.00 € / m2 / month
Service charge 4.00 € / m2 / month

Asking lease terms

Asking rent for office space 12.00 € / m2
Service charge 4.00 € / m2
Surface parking rent 40.00 zł / place
Underground parking rent to be agreed

Currently available areas

Total available office area 2 050 m2
Minimum office space to let 150 m2
Minimum lease term to be agreed
Building add-on factor 8.00 %

Building details

Building status existing
Total net office space 4 500 m2
Building completion date 2001
Above-ground floors 4 (ground floor included)
Underground floors 0
Typical floor size 1 680 m2
Number of surface parking spaces 170
Number of underground parking spaces 0
Ecological Certificate -
Parking ratio 1 place per 26 m2 of the leased space

Standard fit-out

internal blinds
sprinklers
backup power supply
access control
telephone cabling
computer cabling
power cabling
switchboard
air-conditioning
smoke/heat detectors
raised floor
suspended ceiling
carpeting
openable windows
fibre optic connection
partition walls
BMS

Amenities

coffee shop
ATM
parcel locker
parking for guests
bike parking
car wash
co-work
kindergarden
laundry
supermarket
gym / fitness
canteen / restaurants
conference center
medical center
parks / green areas
hotel in vicinity

Space available

Contact us

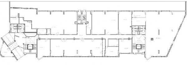
Typical floor plan

Don't have time for searching? Contact us

Calculate total occupancy costs

taking into consideration head count and workplace strategy in over 160 markets

occupiermetrics.com