Rodzaj nieruchomości: biuro Rodzaj oferty: wynajem
/images/galeria/363/biuro-biurowiec_havre-1org.jpg
widok mapy
widok ulicy

Zapytaj o tę nieruchomość
Zadzwoń 48 22 820 20 20

lokalizacja nieruchomości

Kraków, ul. Sławka Walerego 3 A

Koszty

Czynsz 10.00 € / m2 / mc
Eksploatacja 12.00 zł / m2 / mc

Wyjściowe warunki najmu

Czynsz wyjściowy za pow. biurową 10.00 € / m2
Koszty eksploatacyjne 12.00 zł / m2
Koszt parkingu naziemnego 100.00 zł / miejsce
Koszt parkingu podziemnego do uzgodnienia

Dostępne powierzchnie

Całkowita dostępna pow. biurowa 196 m2
Minimalna biurowa pow. najmu do uzgodnienia
Minimalny okres najmu do uzgodnienia
Budynkowy współczynnik pow. wspólnych 5.00 %

Informacje o budynku

Status budynku istniejący
Całkowita pow. biurowa netto 2 400 m2
Data zakończenia budowy 2004
Liczba pięter naziemnych 4 (łącznie z parterem)
Liczba pięter podziemnych 0
Powierzchnia typowego piętra 640 m2
Liczba miejsc parkingowych naziemnych 140
Liczba miejsc parkingowych podziemnych 0
Certyfikat Ekologiczny -
Wsp. miejsc parkingowych 1 miejsce na 20 m2 powierzchni

Standard wykończeń

żaluzje wewnętrzne
tryskacze
podwójne zasilanie
kontrola dostępu
okablowanie telefoniczne
okablowanie komputerowe
okablowanie elektryczne
centrala telefoniczna
klimatyzacja
czujniki dymu i ciepła
podnoszone podłogi
podwieszane sufity
wykładziny
otwierane okna
łącze światłowodowe
ścianki działowe
BMS

Dostępne powierzchnie

Skontaktuj się z nami

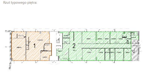
Plan typowego piętra

Nie masz czasu szukać? Skontaktuj się z nami

Oblicz łączne koszty wynajmu

Biorąc pod uwagę liczbę pracowników oraz aranżację stanowisk pracy

occupiermetrics.com