Rodzaj nieruchomości: biuro Rodzaj oferty: wynajem
/images/galeria/3066/zrodlowy-1.jpg
widok mapy
widok ulicy

Zapytaj o tę nieruchomość
Zadzwoń 48 22 820 20 20

lokalizacja nieruchomości

Warszawa, ul. Domaniewska 39

Koszty

Czynsz 10.00 € / m2 / mc
Eksploatacja 19.50 zł / m2 / mc

Wyjściowe warunki najmu

Czynsz wyjściowy za pow. biurową 10.00 € / m2
Koszty eksploatacyjne 19.50 zł / m2
Koszt parkingu naziemnego do uzgodnienia
Koszt parkingu podziemnego 100.00 € / miejsce

Dostępne powierzchnie

Całkowita dostępna pow. biurowa 1 925 m2
Minimalna biurowa pow. najmu do uzgodnienia
Minimalny okres najmu do uzgodnienia
Budynkowy współczynnik pow. wspólnych 5.00 %

Informacje o budynku

Status budynku istniejący
Całkowita pow. biurowa netto 18 305 m2
Data zakończenia budowy 2008
Liczba pięter naziemnych 7 (łącznie z parterem)
Liczba pięter podziemnych 2
Powierzchnia typowego piętra 2 400 m2
Liczba miejsc parkingowych naziemnych 7
Liczba miejsc parkingowych podziemnych 298
Certyfikat Ekologiczny BREEAM - Excellent
Wsp. miejsc parkingowych do uzgodnienia

Standard wykończeń

żaluzje wewnętrzne
tryskacze
podwójne zasilanie
kontrola dostępu
okablowanie telefoniczne
okablowanie komputerowe
okablowanie elektryczne
centrala telefoniczna
klimatyzacja
czujniki dymu i ciepła
podnoszone podłogi
podwieszane sufity
wykładziny
otwierane okna
łącze światłowodowe
ścianki działowe
BMS

Dostępne powierzchnie

Skontaktuj się z nami

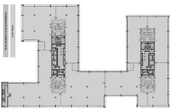
Plan typowego piętra

Nie masz czasu szukać? Skontaktuj się z nami

Oblicz łączne koszty wynajmu

Biorąc pod uwagę liczbę pracowników oraz aranżację stanowisk pracy

occupiermetrics.com