Rodzaj nieruchomości: biuro Rodzaj oferty: wynajem
/images/galeria/1941/zrodlowy-1.jpg
/images/galeria/1941/zrodlowy-2.jpg
/images/galeria/1941/zrodlowy-3.jpg
/images/galeria/1941/zrodlowy-4.jpg
widok mapy
widok ulicy

Zapytaj o tę nieruchomość
Zadzwoń 48 22 820 20 20

lokalizacja nieruchomości

Wrocław, ul. Sucha 1

Koszty

Czynsz 15.50 € / m2 / mc
Eksploatacja 25.76 zł / m2 / mc

Wyjściowe warunki najmu

Czynsz wyjściowy za pow. biurową 15.50 € / m2
Koszty eksploatacyjne 25.76 zł / m2
Koszt parkingu naziemnego do uzgodnienia
Koszt parkingu podziemnego 90.00 € / miejsce

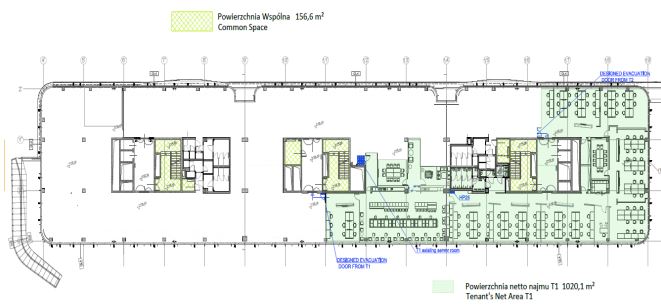
Dostępne powierzchnie

Całkowita dostępna pow. biurowa 1 020 m2
Minimalna biurowa pow. najmu 500 m2
Minimalny okres najmu do uzgodnienia
Budynkowy współczynnik pow. wspólnych 5.00 %

Informacje o budynku

Status budynku istniejący
Całkowita pow. biurowa netto 7 540 m2
Data zakończenia budowy IV 2017
Liczba pięter naziemnych 4 (łącznie z parterem)
Liczba pięter podziemnych 2
Powierzchnia typowego piętra 17 750 m2
Liczba miejsc parkingowych naziemnych do uzgodnienia
Liczba miejsc parkingowych podziemnych 89
Certyfikat Ekologiczny -
Wsp. miejsc parkingowych 1 miejsce na 80 m2 powierzchni

Standard wykończeń

żaluzje wewnętrzne
tryskacze
podwójne zasilanie
kontrola dostępu
okablowanie telefoniczne
okablowanie komputerowe
okablowanie elektryczne
centrala telefoniczna
klimatyzacja
czujniki dymu i ciepła
podnoszone podłogi
podwieszane sufity
wykładziny
otwierane okna
łącze światłowodowe
ścianki działowe
BMS

Dostępne powierzchnie

Skontaktuj się z nami

Plan typowego piętra

Nie masz czasu szukać? Skontaktuj się z nami

Oblicz łączne koszty wynajmu

Biorąc pod uwagę liczbę pracowników oraz aranżację stanowisk pracy

occupiermetrics.com