Rodzaj nieruchomości: biuro Rodzaj oferty: wynajem
/images/galeria/264/zrodlowy-3.jpg
/images/galeria/264/zrodlowy-4.jpg
widok mapy
widok ulicy

Zapytaj o tę nieruchomość
Zadzwoń 48 22 820 20 20

lokalizacja nieruchomości

Warszawa, ul. Domaniewska 39 A

Koszty

Czynsz 13.00 - 14.00 € / m2 / mc
Eksploatacja 32.68 zł / m2 / mc

Wyjściowe warunki najmu

Czynsz wyjściowy za pow. biurową 13.00 - 14.00 € / m2
Koszty eksploatacyjne 32.68 zł / m2
Koszt parkingu naziemnego do uzgodnienia
Koszt parkingu podziemnego 100.00 € / miejsce

Dostępne powierzchnie

Całkowita dostępna pow. biurowa 14 426 m2
Minimalna biurowa pow. najmu 412 m2
Minimalny okres najmu 60 miesięcy
Budynkowy współczynnik pow. wspólnych 3.50 %

Informacje o budynku

Status budynku istniejący
Całkowita pow. biurowa netto 32 941 m2
Data zakończenia budowy 2009
Liczba pięter naziemnych 11 (łącznie z parterem)
Liczba pięter podziemnych 2
Powierzchnia typowego piętra 3 700 m2
Liczba miejsc parkingowych naziemnych 46
Liczba miejsc parkingowych podziemnych 532
Certyfikat Ekologiczny -
Wsp. miejsc parkingowych 1 miejsce na 70 m2 powierzchni

Standard wykończeń

żaluzje wewnętrzne
tryskacze
podwójne zasilanie
kontrola dostępu
okablowanie telefoniczne
okablowanie komputerowe
okablowanie elektryczne
centrala telefoniczna
klimatyzacja
czujniki dymu i ciepła
podnoszone podłogi
podwieszane sufity
wykładziny
otwierane okna
łącze światłowodowe
ścianki działowe
BMS

Udogodnienia

kawiarnia
bankomat
paczkomat
parking dla gości
parking dla rowerów
myjnia samochodowa
co-work
przedszkole
pralnia
supermarket
siłownia / fitness
kantyna / restauracje
centrum konferencyjne
centrum medyczne
parki / tereny zielone
hotel w okolicy

Dostępne powierzchnie

Skontaktuj się z nami

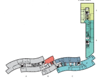
Plan typowego piętra

Nie masz czasu szukać? Skontaktuj się z nami

Oblicz łączne koszty wynajmu

Biorąc pod uwagę liczbę pracowników oraz aranżację stanowisk pracy

occupiermetrics.com